- Bauherr: Tischler Rohstoff e.Gen.
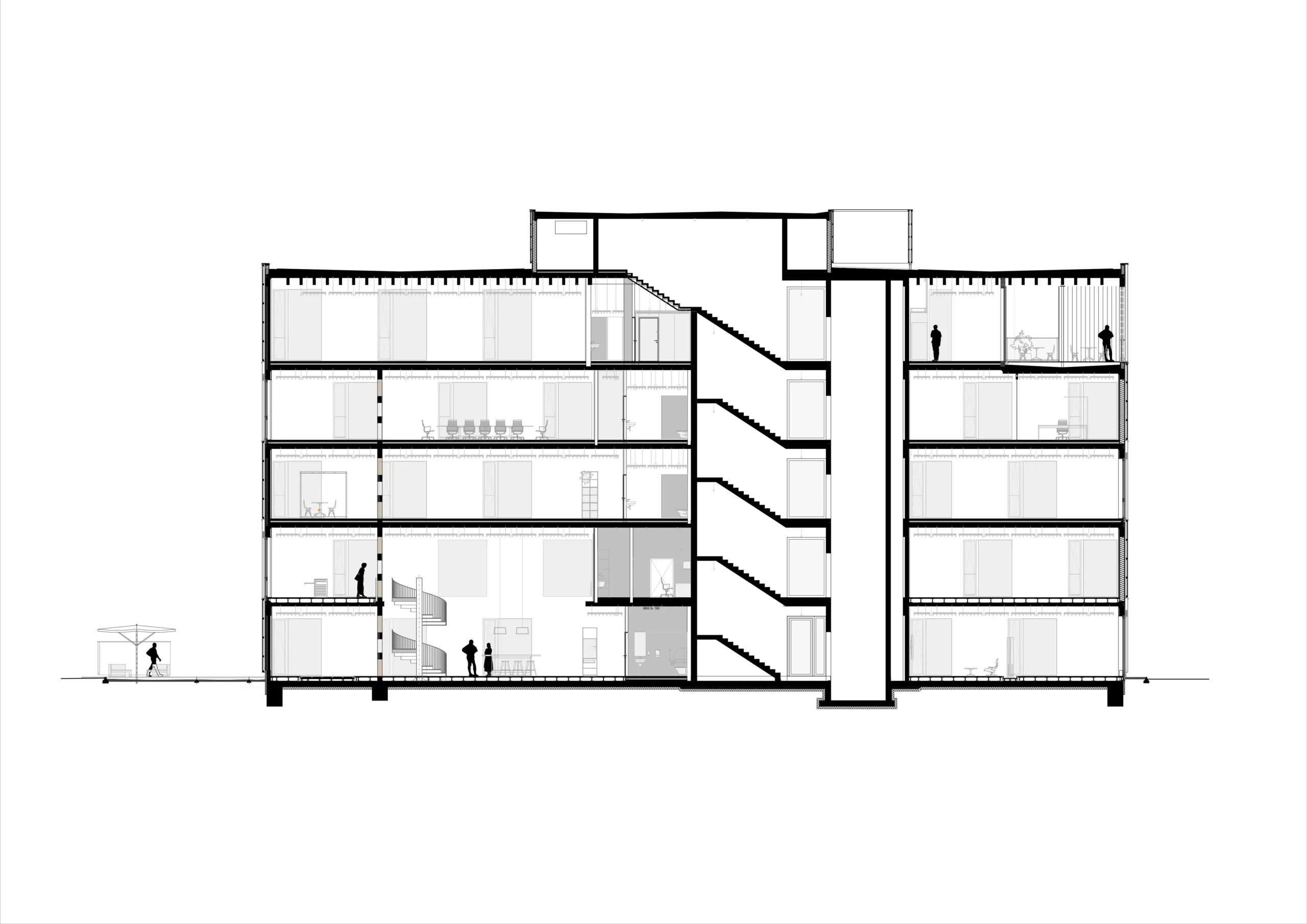
- Neubau Verwaltungs- und Lagergebäude
- A-6845 Hohenems
- Entwurfs-, Einreich-, Ausführungs- und Innenraumplanung
- Planungsbeginn Nov 2020
- Fertigstellung Verwaltung Dez 2023
- Fertigstellung Lagerhalle Jul 2025
- konstruktiver Holzbau
- Büronutzfläche ca. 820m²
- Ausstellungsfläche ca. 670m²
- Veranstaltungsfläche ca. 340m²
- Lagerhalle ca. 10000m²